Flatlands Tudor With Art Deco Lavatory, Garage, Herringbone Floors Asks $779K
Behind the charming 1930s brick facade, this one-family in Flatlands retains a nice surprise for
Behind the charming 1930s brick facade, this one-family in Flatlands retains a nice surprise for lovers of vintage fashion: an Artwork Deco bath gleaming with first tile. There are other period facts on the interior of 1931 Schenectady Avenue, along with the bonus of a garage.
A certification of occupancy exhibits the dwelling dates to 1932, when it and its a few neighbors were being manufactured by the Delaware Building Corporation to the types of architect Isaac Kallich. Skilled in Odessa, Russia, and at New York University, Kallich pops up usually in the early 20th century as the architect at the rear of one-relatives households and condominium residences in Brooklyn. In this article he created single-loved ones properties with touches of the Tudor Revival model that was so well-known at the time. The historic tax photograph reveals that a couple details on No. 1931 have transformed, like the initially floor window, but most of the authentic elements are intact. There is the curved entrance bay, a miniature tower entire with a small arched window and a matching entry doorway, and the patterned brick facade. The latter contains a corbel underneath yet another arched window established into the peak of the front gable.
Help save this listing on Brownstoner Serious Estate to get cost, availability and open household updates as they transpire >>
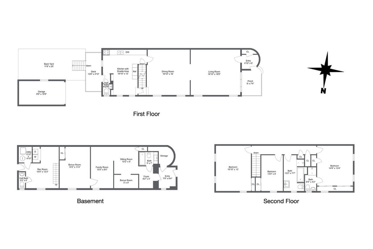
The dwelling is semi-detached, so it has windows on three exposures. The inside exhibits a combine of renovations, from more current to some distinctly later on 20th century paneling, but initial facts include things like parquet floors, moldings and an arched niche in the living home. An arched opening sales opportunities from the street-struggling with living room — which has a mantel — to the eating home.
A glass doorway separates the eating room and kitchen, and though a glimpse of a tile ground can be witnessed there isn’t a kitchen area photograph in the listing. It is described as “a huge granite kitchen area,” so initial element may perhaps not have survived.
Upstairs are 3 bedrooms, one particular of which has some daring shag carpeting but presumably parquet floors underneath like the other bedroom demonstrated in the listing.
A person of the two whole baths on this ground is the standout aspect of the house. The walls and ceiling are included in amazing green tiles with black trim tiles, like inside of the original tub specialized niche and the crafted-in shower. There are matching environmentally friendly fixtures and black components. A lighting cove on the ceiling is trimmed with black tile but ornamented with multi-coloured square mosaic tiles. A stained glass window brings one more wash of coloration into the room.
The finished English basement is divided into two sections. At front, with access by way of a doorway underneath the front porch, is a visitor suite with full bath. The Deco style disappears down below with a lot of the aforementioned faux paneling and a combine of tile and carpeted flooring. The rear of the basement, available by means of a staircase from the kitchen area and a doorway from the rear lawn, has laundry, a fifty percent bath and a rec space.
In the rear garden is a porch off the kitchen, a patch of grass and a one-vehicle garage, reached by means of a shared driveway.
The household hasn’t been on the market place considering that the 1980s. It is now listed for $779,000 by Tariq Hakeem of Access New York Group.
[Listing: 1931 Schenectady Avenue | Broker: Access New York Group] GMAP
Similar Stories
Electronic mail [email protected] with even more feedback, inquiries or recommendations. Adhere to Brownstoner on Twitter and Instagram, and like us on Fb.

















